上海古都辦公室裝修設計公司案例之黃浦區(qū)城匯大廈醫(yī)療博醫(yī)辦公室設計效果。
類型
辦公空間
上海古都辦公室裝修設計公司案例之黃浦區(qū)城匯大廈醫(yī)療博醫(yī)辦公室設計效果。
辦公空間
上海古都辦公室裝修設計公司案例之黃浦區(qū)城匯大廈醫(yī)療博醫(yī)辦公室設計效果。

黃浦區(qū)城匯大廈醫(yī)療博醫(yī)辦公室原始平面圖

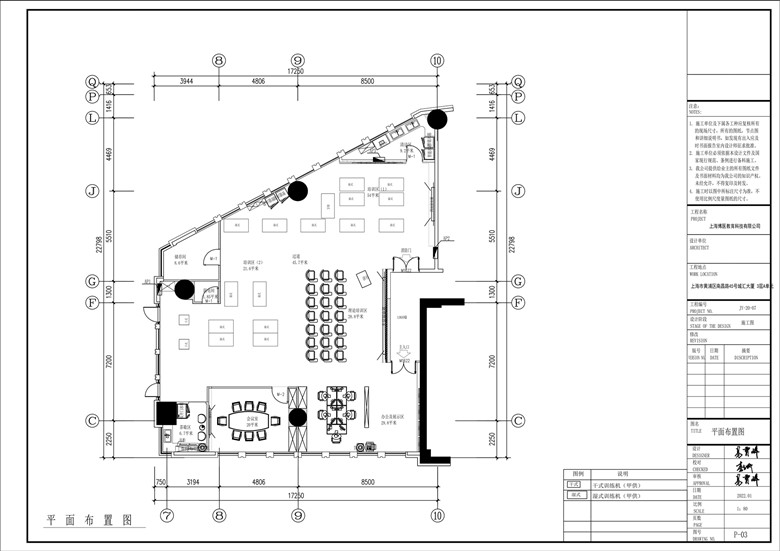
黃浦區(qū)城匯大廈醫(yī)療博醫(yī)辦公室平米布局圖

黃浦區(qū)城匯大廈醫(yī)療博醫(yī)辦公室辦公區(qū)設計效果

黃浦區(qū)城匯大廈醫(yī)療博醫(yī)辦公室培訓區(qū)設計效果

黃浦區(qū)城匯大廈醫(yī)療博醫(yī)辦公室展示區(qū)設計效果

黃浦區(qū)城匯大廈醫(yī)療博醫(yī)辦公室展示區(qū)設計效果

黃浦區(qū)城匯大廈醫(yī)療博醫(yī)辦公室會議區(qū)設計效果

黃浦區(qū)城匯大廈醫(yī)療博醫(yī)辦公室茶水間設計效果

黃浦區(qū)城匯大廈醫(yī)療博醫(yī)辦公室走廊過道設計效果

黃浦區(qū)城匯大廈醫(yī)療博醫(yī)辦公室文化墻設計效果


一站式工程裝修設計服務
Copyright ? 2018-2038上海古都建筑設計集團有限公司版權所有 侵權必究
免責聲明:網站部份內容來互聯網或者AI輔助生成,不代表古都建筑設計的意見,如有侵權請聯系刪除
網站備案:滬ICP備11026211號技術支持:網站優(yōu)化https://www.xpci.com.cn/丨 滬公網安備 號


